Cavco Phoenix
Mountain Ridge Floorplans
Mountain Ridge Series Standard Features
Interior Features
Exterior Features
Kitchen/Bonus Room Features
Bathroom Features
Construction Features
Popular Options
Mountain Ridge 28483A
Cavco Durango proudly introduces the Mountain Ridge Series with 35 brand new floor plans. Each new model, from 1280 square feet to 2720 square feet, has spacious open concept designs filled with lots of windows and natural light. Gourmet kitchens that thoughtfully transition into large eat-in dining areas. And master bedroom suites with large walk-in closets and impressive master bathrooms. Custom designed optional ceramic tile showers are also available for each master bath. Move into any one of the new Mountain Ridge homes and it will have a wonderful and lasting impression with your family for years to come.
3 Beds
2 Baths
1280 sqft
Dimensions
28x48
Sections
Mountain Ridge 28523B
Cavco Durango proudly introduces the Mountain Ridge Series with 35 brand new floor plans. Each new model, from 1280 square feet to 2720 square feet, has spacious open concept designs filled with lots of windows and natural light. Gourmet kitchens that thoughtfully transition into large eat-in dining areas. And master bedroom suites with large walk-in closets and impressive master bathrooms. Custom designed optional ceramic tile showers are also available for each master bath. Move into any one of the new Mountain Ridge homes and it will have a wonderful and lasting impression with your family for years to come.
3 Beds
2 Baths
1386 sqft
Dimensions
28x52
Sections
Mountain Ridge 28523A
Cavco Durango proudly introduces the Mountain Ridge Series with 35 brand new floor plans. Each new model, from 1280 square feet to 2720 square feet, has spacious open concept designs filled with lots of windows and natural light. Gourmet kitchens that thoughtfully transition into large eat-in dining areas. And master bedroom suites with large walk-in closets and impressive master bathrooms. Custom designed optional ceramic tile showers are also available for each master bath. Move into any one of the new Mountain Ridge homes and it will have a wonderful and lasting impression with your family for years to come.
3 Beds
2 Baths
1386 sqft
Dimensions
28x52
Sections
Mountain Ridge 28562A
Cavco Durango proudly introduces the Mountain Ridge Series with 35 brand new floor plans. Each new model, from 1280 square feet to 2720 square feet, has spacious open concept designs filled with lots of windows and natural light. Gourmet kitchens that thoughtfully transition into large eat-in dining areas. And master bedroom suites with large walk-in closets and impressive master bathrooms. Custom designed optional ceramic tile showers are also available for each master bath. Move into any one of the new Mountain Ridge homes and it will have a wonderful and lasting impression with your family for years to come.
2 Beds
2.5 Baths
1493 sqft
Dimensions
28x56
Sections
Mountain Ridge 28563B
Cavco Durango proudly introduces the Mountain Ridge Series with 35 brand new floor plans. Each new model, from 1280 square feet to 2720 square feet, has spacious open concept designs filled with lots of windows and natural light. Gourmet kitchens that thoughtfully transition into large eat-in dining areas. And master bedroom suites with large walk-in closets and impressive master bathrooms. Custom designed optional ceramic tile showers are also available for each master bath. Move into any one of the new Mountain Ridge homes and it will have a wonderful and lasting impression with your family for years to come.
3 Beds
2 Baths
1493 sqft
Dimensions
28x56
Sections
Mountain Ridge 28563C
Cavco Durango proudly introduces the Mountain Ridge Series with 35 brand new floor plans. Each new model, from 1280 square feet to 2720 square feet, has spacious open concept designs filled with lots of windows and natural light. Gourmet kitchens that thoughtfully transition into large eat-in dining areas. And master bedroom suites with large walk-in closets and impressive master bathrooms. Custom designed optional ceramic tile showers are also available for each master bath. Move into any one of the new Mountain Ridge homes and it will have a wonderful and lasting impression with your family for years to come.
3 Beds
2 Baths
1493 sqft
Dimensions
28x56
Sections
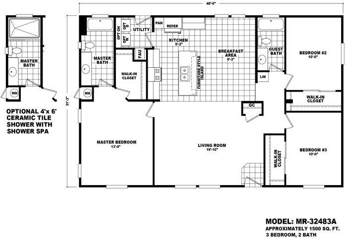
Mountain Ridge 32483A
Cavco Durango proudly introduces the Mountain Ridge Series with 35 brand new floor plans. Each new model, from 1280 square feet to 2720 square feet, has spacious open concept designs filled with lots of windows and natural light. Gourmet kitchens that thoughtfully transition into large eat-in dining areas. And master bedroom suites with large walk-in closets and impressive master bathrooms. Custom designed optional ceramic tile showers are also available for each master bath. Move into any one of the new Mountain Ridge homes and it will have a wonderful and lasting impression with your family for years to come.
3 Beds
2 Baths
1500 sqft
Dimensions
32x48
Sections
Mountain Ridge 28583B
Cavco Durango proudly introduces the Mountain Ridge Series with 35 brand new floor plans. Each new model, from 1280 square feet to 2720 square feet, has spacious open concept designs filled with lots of windows and natural light. Gourmet kitchens that thoughtfully transition into large eat-in dining areas. And master bedroom suites with large walk-in closets and impressive master bathrooms. Custom designed optional ceramic tile showers are also available for each master bath. Move into any one of the new Mountain Ridge homes and it will have a wonderful and lasting impression with your family for years to come.
3 Beds
2 Baths
1546 sqft
Dimensions
28x58
Sections
Mountain Ridge 28583A
Cavco Durango proudly introduces the Mountain Ridge Series with 35 brand new floor plans. Each new model, from 1280 square feet to 2720 square feet, has spacious open concept designs filled with lots of windows and natural light. Gourmet kitchens that thoughtfully transition into large eat-in dining areas. And master bedroom suites with large walk-in closets and impressive master bathrooms. Custom designed optional ceramic tile showers are also available for each master bath. Move into any one of the new Mountain Ridge homes and it will have a wonderful and lasting impression with your family for years to come.
3 Beds
2 Baths
1546 sqft
Dimensions
28x58
Sections
Mountain Ridge 40403B
Cavco Durango proudly introduces the Mountain Ridge Series with 35 brand new floor plans. Each new model, from 1280 square feet to 2720 square feet, has spacious open concept designs filled with lots of windows and natural light. Gourmet kitchens that thoughtfully transition into large eat-in dining areas. And master bedroom suites with large walk-in closets and impressive master bathrooms. Custom designed optional ceramic tile showers are also available for each master bath. Move into any one of the new Mountain Ridge homes and it will have a wonderful and lasting impression with your family for years to come.
3 Beds
2 Baths
1600 sqft
Dimensions
40x40
Sections































